Maison neuve à
Chenières
(54720) Référence :
LP2237601_1
Prix du projet : Maison avec Terrain
prix 399 999 €
- 5 pièces
- 3 chambres
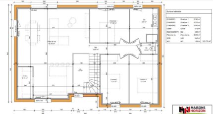
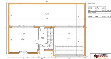
- Surface maison 200 m2
Maison de 5 pièces (200 m²) à vendre à Chenières
EMPLACEMENT PRIVILÉGIÉ - MAISON 5 PIÈCES NEUVE
À vendre : localisée proche de la Belgique et du Luxembourg et à deux pas de Thionville, bénéficiant d'un emplacement d'exception dans Chenières (54720), Maisons Horizon Metz vous propose cette maison de 5 pièces de 200 m².
Cette maison possède 2 niveaux. Elle comporte trois chambres, une cuisine et une salle de bains. La maison est neuve.
Le terrain de la propriété s'étend sur 566 m².
Elle se situe dans un quartier prisé. Une école élémentaire y est implantée. Niveau transports en commun, on trouve la gare Longwy à moins de 10 minutes en voiture. La nationale N52 est accessible à 4 km. Il y a une boulangerie à quelques minutes à peine.
Elle est proposée à l'achat pour 399 999 €.
Contactez notre agence (Luigi PAPA : 03-87-55-10-23) pour obtenir de plus amples informations sur cette maison.
Mentions légales
Terrain proposé par un partenaire foncier selon disponibilités et autorisation de publicité au prix de 130 300 €. Hors droit d'enregistrement et frais de notaire. Maison proposée, avec un contrat de construction de maison individuelle, dans le cadre de la loi du 19/12/1990, au prix de 269 699 € (Hors branchements et raccordements, papiers peints, peintures, revêtement de sol dans les chambres, qui sont chiffrés dans les travaux qui restent à charge du client. Tarif modifiable sans préavis). Étiquette énergie : A. Différents modèles disponibles pour ce terrain. Assurances et garanties du constructeur comprises (RC professionnelle, décennale, dommage ouvrage).Agence Maisons Horizon de Metz (57000)
- Téléphone :
- 03 87 55 10 23
- Adressse :
- 4 rue Pierre Simon de Laplace
57000 Metz, France
