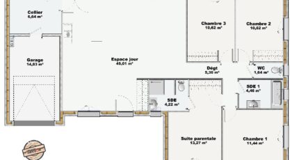
Lumi 113 GI Nord
Plan maison 5 pièces 4 chambres Surface maison 113 m2
Ce plan de maison à ossature bois présente une conception de plain-pied spacieuse et lumineuse, privilégiant le confort et la convivialité. L'espace jour de 45,01 m² constitue le coeur de la maison, offrant un lieu de vie ouvert et accueillant. Les trois chambres, dont une suite parentale avec sa propre salle d'eau, assurent l'intimité et le confort de chacun. Les espaces fonctionnels, tels que le cellier, le garage et les deux salles d'eau, ajoutent une touche de praticité au quotidien.
L'ossature bois de la maison garantit une isolation thermique et acoustique performante, créant une atmosphère chaleureuse et agréable en toute saison. Ce choix de matériau écologique et renouvelable s'inscrit dans une démarche de construction respectueuse de l'environnement. L'agencement fonctionnel et les espaces généreux font de cette maison un lieu de vie idéal pour une famille ou pour ceux qui recherchent le confort d'une maison de plain-pied.