Maison neuve à
Woippy
(57140) Référence :
LP2247908_1
Prix du projet : Maison avec Terrain
prix 399 999 €
- 5 pièces
- 3 chambres
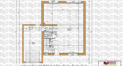
- Surface maison 100 m2
Woippy : maison de 5 pièces (100 m²) à vendre
EMPLACEMENT PRIVILÉGIÉ - MAISON 5 PIÈCES NEUVE
À vendre proche du Luxembourg et de l'Allemagne et à quelques kilomètres de Metz, votre agence Maisons Horizon Metz est ravie de vous proposer cette maison de 5 pièces de 100 m² bénéficiant d'un emplacement privilégié dans Woippy (57140). Son intérieur compte trois chambres, une cuisine et une salle de bains.
Le terrain de cette maison est de 533 m².
Cette maison comporte 2 niveaux. Elle est neuve.
Elle se trouve dans un quartier recherché. Il y a des établissements scolaires primaires à moins de 10 minutes à pied, tout comme une structure d'accueil pour les tout-petits. Côté transports en commun, on trouve la gare Woippy à quelques pas de la maison. Quatre autoroutes et la nationale N431 sont accessibles à moins de 8 km. Il y a des commerces, trois boulangeries, un supermarché, une poissonnerie et deux boucheries-charcuteries dans les environs. Enfin, le marché Place Debs anime les environs chaque mercredi après-midi.
Elle est à vendre pour la somme de 399 999 €.
Contactez notre agence (Luigi PAPA : 03-87-55-10-23) pour plus d'informations sur la maison et sur les démarches à suivre.
Mentions légales
Terrain proposé par un partenaire foncier selon disponibilités et autorisation de publicité au prix de 149 999 €. Hors droit d'enregistrement et frais de notaire. Maison proposée, avec un contrat de construction de maison individuelle, dans le cadre de la loi du 19/12/1990, au prix de 250 000 € (Hors branchements et raccordements, papiers peints, peintures, revêtement de sol dans les chambres, qui sont chiffrés dans les travaux qui restent à charge du client. Tarif modifiable sans préavis). Étiquette énergie : A. Différents modèles disponibles pour ce terrain. Assurances et garanties du constructeur comprises (RC professionnelle, décennale, dommage ouvrage).Agence Maisons Horizon de Metz (57000)
- Téléphone :
- 03 87 55 10 23
- Adressse :
- 4 rue Pierre Simon de Laplace
57000 Metz, France
