Origin 83 GI Nord

Plan maison 4 pièces 3 chambres Surface maison 83 m2

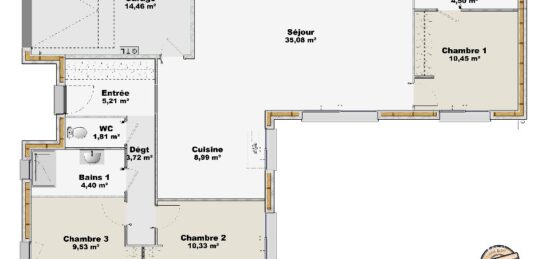
Origin 83 est une maison de plain-pied de 83 m² conçue pour offrir un espace de vie confortable et fonctionnel, idéal pour une famille. L'agencement privilégie la convivialité avec un espace jour spacieux et lumineux de 36,06 m², parfait pour les moments de partage. Les trois chambres, de tailles similaires, offrent à chacun son espace d'intimité, tandis que les espaces fonctionnels, tels que le cellier, le garage et la salle de bains, facilitent le quotidien.
L'espace jour, véritable coeur de la maison, est baigné de lumière naturelle grâce à de larges ouvertures. Il offre un espace de vie ouvert et accueillant, idéal pour se détendre, recevoir des amis ou partager des repas en famille. Les chambres, quant à elles, sont conçues comme des havres de paix, offrant à chacun son espace personnel.
Les espaces fonctionnels, tels que le cellier, le garage et la salle de bains, sont pensés pour faciliter le quotidien. Le dégagement central assure une circulation fluide entre les pièces, tandis que les toilettes séparées ajoutent une touche de confort supplémentaire. L'ensemble de la maison est conçu pour offrir un espace de vie agréable et pratique, où chaque membre de la famille se sentira chez soi.

Construire ce modèle ?

    * Champs obligatoires

    Vos informations sont traitées par HEXAOM et transmises à un conseiller commercial qui vous contactera afin de répondre à votre demande. Les plans et images présentés sur notre site sont la propriété d’HEXAOM et ne peuvent pas être reproduits sans son accord. Pour retrouver notre politique de protection des données personnelles et exercer vos droits conformément à la « loi informatique et liberté » cliquez-ici.