TOPAZE SOUS SOL traditionnel

Plan maison 4 pièces 3 chambres Surface maison 90 à 120 m2

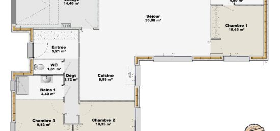
Maisons Horizon constructeur de maisons individuelles, vous propose une maison neuve à faire construire en Lorraine.Cette maison résolument traditionnelle qui conjugue écologie, confort et solutions innovantes. La lumière s'invite sans condition dans cette maison hors norme qui vous procure un sentiment d'espace et de liberté complète. Le modèle TOPAZE SOUS SOL de Maisons Horizon est un modèle de maison à étage de 90.87 m² habitables qui comprend 3 chambres, une salle de bains, et un sous sol. Son architecture est optimisée pour en faire une maison basse consommation (BBC). Le modèle TOPAZE SOUS SOL de Maisons Horizon se caractérise par sa ligne traditionnelle.

Construire ce modèle ?

    * Champs obligatoires

    Vos informations sont traitées par HEXAOM et transmises à un conseiller commercial qui vous contactera afin de répondre à votre demande. Les plans et images présentés sur notre site sont la propriété d’HEXAOM et ne peuvent pas être reproduits sans son accord. Pour retrouver notre politique de protection des données personnelles et exercer vos droits conformément à la « loi informatique et liberté » cliquez-ici.